






Diseño arquitectónico y proyecto ejecutivo
Ubicación: Celaya, Guanajuato, México.
Año: 2018
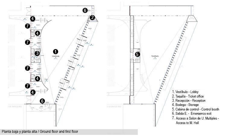
Proyecto ejecutivo para la construcción del nuevo vestíbulo del ECOFORUM ubicado en la ciudad de Celaya, Guanajuato. Como continuación del Plan Maestro aprobado meses antes, se diseña este espacio de aprox. 1,800m2 que funciona como distribuidor principal de los flujos de personas que van a las salas de exposición o entran en el CUM (Centro de Usos Múltiples). Se optó por colores neutros y continuidad del diseño de la fachada en el plafón. Un cuerpo central divide los dos accesos al CUM y funciona también como guardaropa y taquilla así como cabina de control de luz y sonido en segundo nivel. A través de ventanales en las fachadas laterales se obtiene iluminación y ventilación natural que complementan a la de la fachada principal.